Fontano Plaza
Garten Brunnen Umrandung eckig Stein - Fontano Plaza / Terrakotta / 330x264cm
37,2x330x264cm (HxBxT), Stein, Terrakotta, Windsorstone
7 129.00 CHF
Nos modes de paiement
Achetez maintenant et recevez-le dans environ ca. 8 Wochen
Mode de livraison: Spedition
Résistant au gel et à l'hiver
Garantie de 2 ans
Produit artisanal de qualité
Livraison gratuite en Autriche
Encadrements de fontaine sur mesure selon vos idées
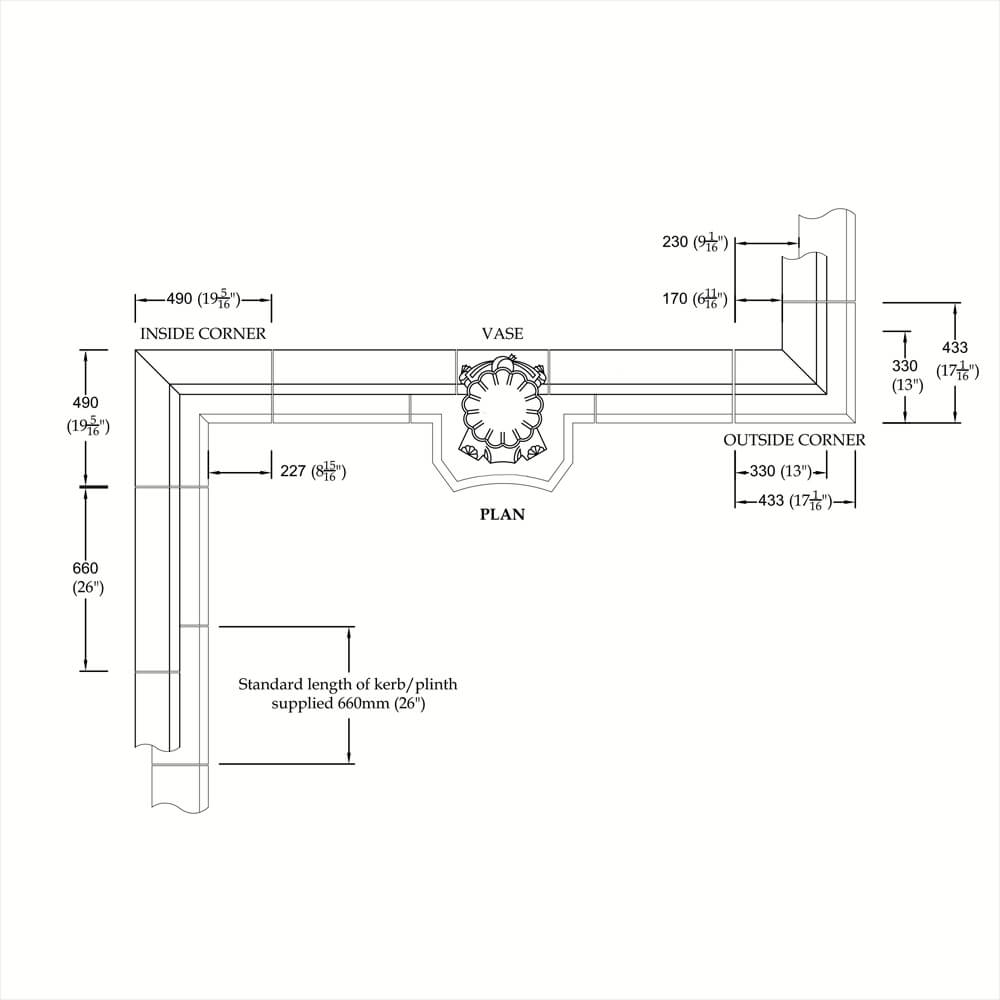
Cette bordure de fontaine de jardin carrée en pierre reconstituée est fabriquée dans un atelier d'artisanat traditionnel en Angleterre. Elle est parfaite pour ceux qui recherchent une fontaine aux formes carrées, rectangulaires ou personnalisées (par exemple en forme de U). Nous serons ravis de vous proposer une offre adaptée à votre fontaine de jardin unique, selon vos dimensions. Les mesures des éléments individuels sont visibles sur les dessins schématiques présents dans les images du produit. Le composant le plus lourd de l'encadrement pèse 38 kg. Les vases illustrés sur le schéma ne font pas partie de la livraison, tout comme les fontaines en forme de dauphins visibles sur la photo du produit.
Résumé des caractéristiques principales
- pierre reconstituée résistante à l'hiver, disponible en plusieurs couleurs
- personnalisable
- fabrication de haute qualité
- nombre de segments droits : 14
- nombre d'angles : 4
Conseils pour l'installation de l'encadrement de fontaine
Pour installer le bassin, une dalle en béton d'environ 20 cm d'épaisseur est nécessaire. La surface supérieure de la dalle doit être légèrement inclinée avec un point le plus bas au centre de la fontaine. Ce point peut servir de puisard pour la pompe, facilitant ainsi le pompage de l'eau du bassin si besoin. Idéalement, un écoulement avec bouchon vers le terrain environnant est prévu. Tous les éléments de fixation, ainsi que les équerres en acier inoxydable pour assembler les segments entre eux ou pour fixer la structure à la dalle en béton, sont fournis et inclus dans le prix.
| Material: | Stein |
|---|---|
| Farbe: | Terrakotta |
| Design: | XXL |
| Kollektion: | Windsorstone |
| Preis: | 5.001€ - 10.000€ |
Connexion