Fontano Plaza
Garten Brunnen Umrandung eckig Stein - Fontano Plaza / Sand / 264x198cm
37,2x264x198cm (HxBxT), Stein, Sand, Windsorstone
5 690.00 CHF
Nos modes de paiement
Achetez maintenant et recevez-le dans environ ca. 8 Wochen
Mode de livraison: Spedition
Résistant au gel et à l'hiver
Garantie de 2 ans
Produit artisanal de qualité
Livraison gratuite en Autriche
Encadrements de fontaine personnalisés selon vos souhaits
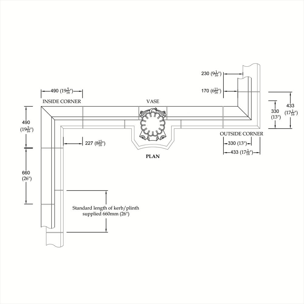
Cette bordure de fontaine de jardin carrée en pierre reconstituée est fabriquée dans un atelier d'artisanat traditionnel en Angleterre. Elle est parfaite pour ceux qui recherchent une fontaine au design unique, qu'elle soit carrée, rectangulaire ou dans une forme spéciale (par exemple en U). Nous serons ravis de vous proposer une offre personnalisée pour votre fontaine de jardin selon vos dimensions. Les dimensions des différentes parties sont visibles sur les dessins schématiques dans les images du produit. La pièce la plus lourde de l'encadrement pèse 38 kg. Les vases illustrés sur le dessin schématique ne font pas partie de la livraison, tout comme les gargouilles en forme de dauphins visibles sur la photo du produit.
Tous les faits en un coup d'œil
- pierre reconstituée résistante à l'hiver, plusieurs couleurs disponibles
- personnalisable
- fabrication de haute qualité
- nombre de segments droits : 10
- nombre d'angles : 4
Conseils pour l'installation de l'encadrement de la fontaine
Pour installer le bassin, une dalle en béton d'environ 20 cm d'épaisseur est nécessaire. La surface supérieure de la dalle doit être légèrement inclinée, avec un point le plus bas au centre de la fontaine. Ce point peut servir de puisard pour la pompe, facilitant ainsi le pompage de l'eau du bassin si besoin. Idéalement, un drain avec bouchon vers le terrain environnant est prévu. Tous les éléments de fixation, ainsi que les équerres en acier inoxydable pour visser les segments entre eux ou à la dalle en béton, sont fournis et inclus dans le prix.
| Material: | Stein |
|---|---|
| Farbe: | Sand |
| Design: | eckig |
| Kollektion: | Windsorstone |
| Preis: | 5.001€ - 10.000€ |
Connexion