Anguloso Fuente
Brunneneinfassung für den Garten eckig individuell - Anguloso Fuente / Terrakotta / 362,1x329,4cm
37,2x362,1x329,4cm (HxBxT), Stein, Terrakotta, Windsorstone
12 215.00 CHF
Nos modes de paiement
Achetez maintenant et recevez-le dans environ ca. 8 Wochen
Mode de livraison: Spedition
Résistant au gel et à l'hiver
Garantie de 2 ans
Produit artisanal de qualité
Livraison gratuite en Autriche
Concevez votre fontaine de jardin selon vos envies
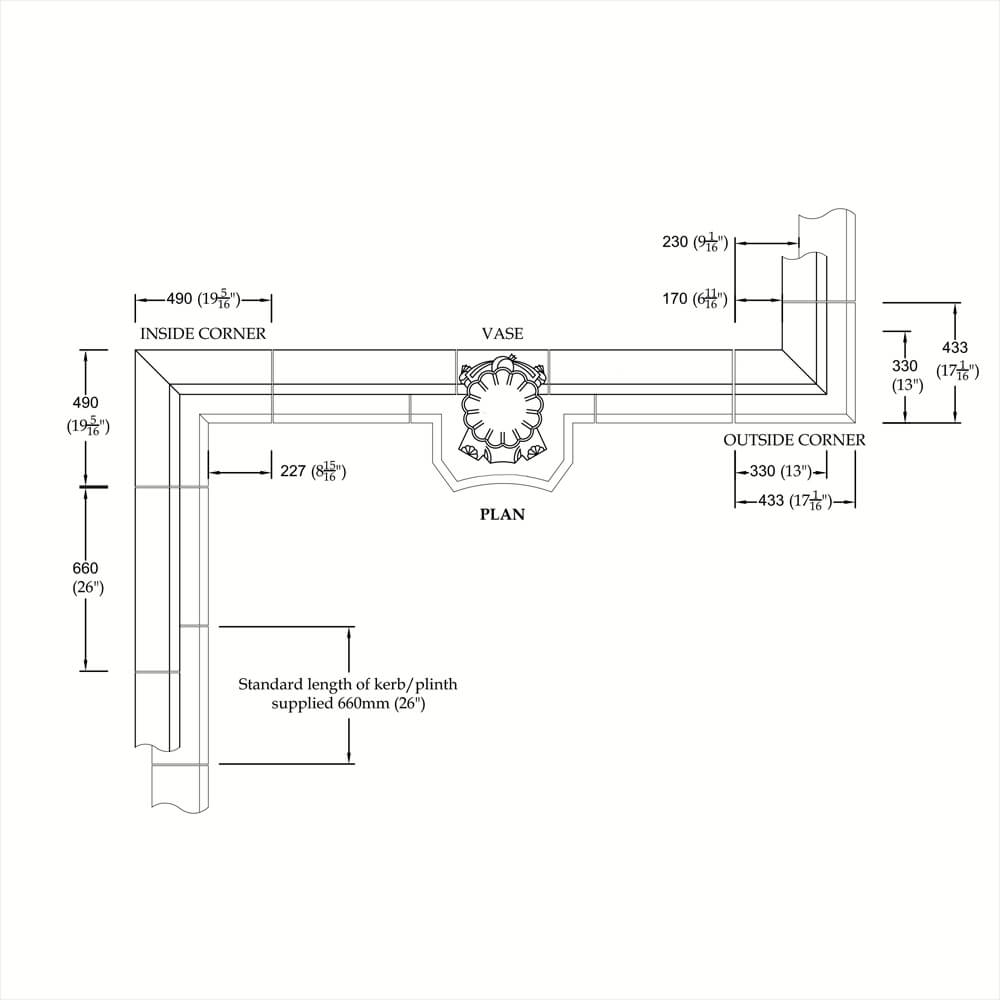
Avec cette bordure de fontaine carrée pour jardin, vous disposez de nombreuses options pour créer une fontaine unique. Nous serons ravis de vous proposer une offre sans engagement pour une fontaine de jardin entièrement personnalisée : carrée, rectangulaire ou en forme de U ? Aucun souci, nous réalisons ensemble la fontaine de vos rêves. La bordure de la fontaine est fabriquée dans un atelier d'artisanat traditionnel en Angleterre, à partir de grès de haute qualité. Le composant individuel le plus lourd pèse 60,5 kg. Entre chaque élément de la fontaine, un vase est intégré, pouvant servir de bec d'eau ou de pot de fleurs. Ces vases sont optionnels et peuvent être installés selon vos préférences. Les becs d'eau en forme de dauphin visibles sur la photo ne sont pas inclus dans la livraison.
Toutes les informations en un coup d'œil
- Résistant au gel, moulage en pierre
- Différentes couleurs disponibles
- Personnalisable
- Finition de haute qualité
- Nombre de segments droits : 14
- Nombre d'angles : 4
- Nombre de vases : 10
Conseils pour l'installation de la bordure de la fontaine
Pour installer le bassin, une dalle en béton d'environ 20 cm d'épaisseur est nécessaire. La surface supérieure de la dalle doit être légèrement inclinée, avec un point le plus bas au centre de la fontaine. Ce point peut servir de puisard pour la pompe, facilitant ainsi le pompage de l'eau du bassin si besoin. Idéalement, un drain avec bouchon vers le terrain environnant est prévu. Tous les éléments de fixation, ainsi que les équerres en acier inoxydable pour visser les segments entre eux et à la dalle en béton, sont fournis et inclus dans le prix.
| Material: | Stein |
|---|---|
| Farbe: | Terrakotta |
| Design: | XXL |
| Kollektion: | Windsorstone |
| Preis: | mehr als 10.000€ |
Connexion